The Daily Pulse.

Your source for accurate, unbiased news and insightful analysis

education

Where can I find a plumbing diagram for my house

By Olivia Owen |

From the County Clerk Visit the county clerk’s office in the county where your home resides. This may be called the county recorder or land registrar in some municipalities. Once there, request copies of the blueprints on file for the property.

How do I find the plumbing diagram for my house?

From the County Clerk Visit the county clerk’s office in the county where your home resides. This may be called the county recorder or land registrar in some municipalities. Once there, request copies of the blueprints on file for the property.

Where are the water pipes in my house?

Your main water supply line enters your home at ground level or below. In warm weather zones, the line usually sticks up out of the ground just outside the home and then enters the side of the house. … In cold zones, the main water supply line often enters the house below ground level in a basement or similar space.

Do house blueprints show plumbing?

Do the plans/blueprints include plumbing and electrical? A: The rough plumbing is included on the plans showing the kitchen and bath fixture symbols and their locations. However, the location of where the pipes come into the house is site specific and not included on the plans.

Can you find blueprints online?

Many city and county governments describe their policies regarding blueprints online. You can find this information by searching for the name of your locale along with the words “property records” or “home records”. The site will likely have a section about blueprints or building plans.

Do architects do plumbing drawings?

Yes. The Architects Practice Act allows architects to prepare, stamp, and sign mechanical, electrical, and plumbing drawings since the definition for scope of architectural practice includes “ … the design, in whole or in part, of buildings … .”

Do architects know about plumbing?

Since plumbing system is an essential part of the house, it needs extra attention during the construction of the house. Most of the architects only know how to do their job, which is constructing a building. They do not have the responsibility of other matters such as plumbing systems.

What are plumbing drawings called?

With the help of detailed electrical shop drawings, contractors assess the exact layout of electrical units to install mechanical units smoothly. As the name suggests, plumbing shop drawings represent the plumbing elements inside a building, such as piping systems, drainage, garbage disposals, and waste carriers.

Do architect plans include plumbing?

No, plumbing drawings are part of mechanical drawings, but depends on your agreement with architect, sometimes it is part of the package.

How do you find water pipes in walls?
  1. Use a wall scanner.
  2. Use a stud finder to detect pipes while water is running through them.
  3. Use a borescope camera that links with your smartphone.
  4. Run water and use a stethoscope to locate pipes by sound.
Article first time published on

Who can draw up house plans?

You can hire an architect, draftsman or engineer for drawings. In most residential settings, you’ll need a draftsman or engineer. However, avoid delays by having an architect or licensed contractor review your blueprints prior to starting construction.

Are blueprints public?

A blueprint is a map of a building. … Once the blueprints have been filed by the contractor with the municipality building department, these building plans are public records and technically attainable by anyone wanting to view them.

Do plumbers work together?

Plumbers and Restoration Companies Can Work Together to Fix Property Damage. A home is one of the greatest assets most people will ever own, and for a homeowner it can also one of the biggest liabilities. There is virtually no end to the number of things that can damage a home.

How do plumbers read blueprints?

  1. Obtain a guide to the plumbing symbols on a blueprint. …
  2. Spread the blueprint on a table, counter or other flat surface that will allow you to read the entire page at once. …
  3. Read the schedules that accompany the blueprints.

What does a plumbing engineer do?

The Plumbing Engineer designs the water distribution system to protect the public health to the plumbing fixtures, landscaping irrigation, fire suppression system, filtration systems, mechanical systems, cleaning systems and process equipment.

What are two main things that must be considered when designing a plumbing system?

  • WATER TYPE. Depending on where you live, the water going through your pipes may be corrosive. …
  • PLUMBING USE. …
  • SOIL CHARACTERISTICS. …
  • EXPOSURE TO SUNLIGHT.

Who designs plumbing plans?

These plans show the engineer the location of plumbing fixtures such as toilets, sinks, and water heaters in the design. Some projects require piping for equipment as well. Generally, the engineer draws a plumbing plan and connection diagrams. Typical diagrams are of the water-supply system and the sanitary stack.

What is included in plumbing plan?

Mainly plumbing drawing consist of water supply system drawings, drainage system drawings, irrigation system drawings, storm water system drawings. In water supply system drawing there will be hot water piping and cold water piping and hot water return piping also.

Do blueprints have to be stamped?

States require locally licensed architects to stamp most drawings for building projects, especially those that are of public safety concerns. … Under the laws of many states, single-family homes and structures under a certain square footage are exempt from requiring the involvement of an architect in the design.

Is a dishwasher considered a plumbing fixture?

Examples of a plumbing fixture would be a sink, toilet, and bathtub. Examples of a plumbing appliance would be washing machine, dishwasher, and water heater. Examples of a plumbing appurtenance are a water meter, pressure gauge, vacuum breaker, and pressure reducing valve.

What are plumbing shop drawings?

Plumbing shop drawings are technical drawings of fresh water supply pipes as well as solid and liquid water waste pipes with pipe dimensions, plumbing fixtures marked with appropriate color coding. Plumbing shops are part of our core MEP engineering services offered to plumbing contractors and fabricators.

What do architectural plans show?

Architectural plans include working drawings, schedules, and other sheets shown in the list below. Many architectural plan sheets are horizontal (section) views of the building. The most common plan sheets include floor plans, foundation plans, and roof plans.

What does riser diagram mean?

An electrical riser diagram helps you know the system layout, which could come in handy if you are looking at a large rise building in Chicago. You would know about the electrical wiring that has gone up in the building vertically, in a way that’s organized, safe, and orderly manner.

What is sanitary riser diagram?

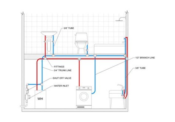
The point of a plumbing riser diagram is to separate out plumbing systems for potable water, waste water, storm water, sewage, and so on to be able to identify exactly where the different piping is located and what it is attached to in terms of appliances, drains, other building systems, and so on.

What is the purpose of a riser diagram?

– [Instructor] Riser diagrams are usually a view of systems connections, such as fire alarm connections. Often times, these systems connect two devices throughout a building and incorporate more than one level or floor of the building.

How many types of piping drawings are there?

There are two types of views in hand-drawn piping drawings: Orthographic – Plans and Elevations. Pictorial – Isometric Views.

How do you find the isometric drawing of a pipe?

  1. The A size is measured from the front to the center line of the elbow / pipe.
  2. The B size is measured from centerline to centerline.
  3. The C size is like the A size, measured from the front to the center line of the elbow / pipe.

How do you do plumbing in Autocad?

On the Plumbing Line tab of the Plumbing tool palette, select a plumbing line tool. Note: To draw a plumbing run, you can also click the add grip on an existing plumbing line segment or click Home tab Build panel Plumbing Line . On the Design tab of the Properties palette, under General, specify a plumbing line style.

How do I find my water pipes?

  1. Purchase a pipe locator device that is capable of finding both metal and plastic pipes. …
  2. Set up your pipe locator as directed. …
  3. Walk through your yard, aiming the sensor on the pipe locator at the ground as you walk.

Can a stud finder find water pipes?

In general, yes. Stud finders are designed to find any obstruction in the wall – including water pipes. So if you are just handling a project around the house, you can rely on your stud finder to locate pipes. But if you are a plumber, you will still want to invest in a specific pipe detector.

How much does it cost to have an architect draw up house plans?

Architects cost $2,000 to $20,000 to draw basic plans or $15,000 to $80,000+ for full house design and services. Average architect fees are 8% to 15% of construction costs to draw house plans or 10% to 20% for remodels. Architects charge hourly rates of $100 to $250 or $2 to $15 per square foot.